• Appartement
  • Vente

CANNES magnifique T2 avec terrasse 100m2 – garage et cave

CANNES
330 000€

Description

**EXCEPTIONNEL** Venez découvrir ce charmant 2 pièces de 49,33 m2 loi Carrez entièrement rénové et sa superbe terrasse ainsi que ses espaces verts parfaitement entretenus. Piscine hors sol l’été de 2,20 x 4,20 idéal pour se rafraîchir par ces fortes chaleurs.
Situé dans une petite copropriété de 3 étages au calme à proximité des plages et des commodités, vous serez séduit par sa luminosité et ses volumes.
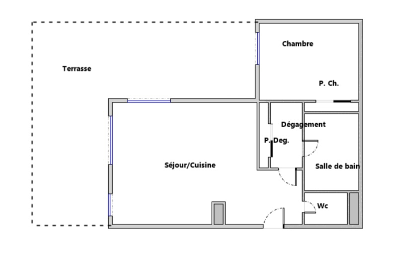
Il est composé d’une entrée, un séjour avec cuisine ouverte aménagée et équipée, un couloir avec placard, un toilette indépendant, une salle de bains, une chambre avec placard, une terrasse et un très grand espace de stockage extérieur couvert (environ 30m2).
Un garage fermé de et une cave viennent compléter cet appartement.
Climatisation, double vitrage.

Visites et renseignements au 0663635431.

Honoraires agence charge acquéreur.

Maison soumis au régime de la copropriété (15 lots).
Montant charges annuelles : 2160 euros

Date réalisation des diagnostics : 12/02/2024
Consommation énergie primaire : C ( 136 kWh/m²/an )
Consommation énergie finale : 59 kWh/m²/an
Montant estimé des dépenses annuelles d’énergie pour un usage standard : entre 480 euros et 700 euros par an.
Prix moyens des énergies indexées sur l’année 2021 (abonnement compris)

Les informations sur les risques auxquels ce bien est exposé sont disponibles sur le site Géorisques : www.georisques.gouv.fr

Copropriété de 38 lots – dont 12 lots habitation. (Pas de procédure en cours).

Charges annuelles : 2160 euros.

Résumé

  • Type Appartement
  • Chambres 1
  • Salle de bains 1
  • Surface 49.33 m²
  • Prix 330,000€

Détails

  • Référence 55791566
  • Prix 330 000€
  • Honoraires 13000€
  • Les honoraires d'agence seront à la charge du vendeur
  • Taxe foncière 995€
  • Nombre de pièces 2
  • Nombre de salles de bain 1
  • Nombre d'étages 3
  • Chauffage Individuel
  • Cuisine Aménagée/équipée
  • Copropriété Oui
  • Nombre de lots 38
  • Procédures non
  • Détails procédures pas de procédure en cours

Les plus

  • Ascenseur
  • Cave
  • Climatisation
  • Digicode

Diagnostic énergétique du bien

DPE non communiqué Consommations non exploitables
* Dont émissions de gaz à effet de serre
GES non communiqué Consommations non exploitables

Géorisques

Les informations sur les risques auxquels ce bien est exposé sont disponibles sur le site Géorisques https://www.georisques.gouv.fr