• Appartement
  • Vente

MENTON Magnifique appartement 4 pièces au coeur du centre-ville

MENTON
380 000€

Description

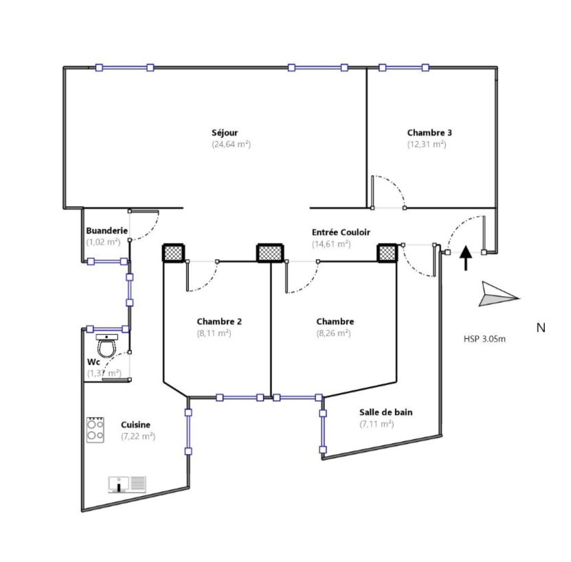
-EXCLUSIVITÉ- Venez découvrir ce charmant appartement idéalement situé au coeur du centre-ville, offrant le parfait équilibre entre confort, espace et tranquillité dans un cadre lumineux et accueillant.

Il est composé d’un spacieux couloir avec un placard de rangement menant à trois chambres dont une équipée de placards, une cuisine indépendante équipée et aménagée, un toilette indépendant, un séjour lumineux avec espace salle à manger, un espace buanderie et une salle de bain avec toilette.
Belle hauteur sous plafond, qui confère à l’appartement un volume et un cachet exceptionnel.

Cet appartement est idéal pour une famille ou ceux qui recherchent un espace de vie spacieux et agréable, au coeur de toutes les commodités : commerces, écoles, transports en commun, tout est accessible à pied !
Ne manquez pas l’opportunité de vivre dans un bien rare, alliant charme et modernité.

Visites et renseignements au 0670916353.

Honoraires agence charge vendeur.
Bien soumis aux statuts de la copropriété .
Montant charges annuelles : 0 euros.
DPE : D GES : D
Date de réalisation du diagnostic : 12/11/2024

Les informations sur les risques auxquels ce bien est exposé sont disponibles sur le site Georisques : georisques.gouv.fr
Copropriété de 3 lots – dont 3 lots habitation.
emma mechin (EI) Agent Commercial – Numéro RSAC : – .

Résumé

  • Type Appartement
  • Chambres 3
  • Salle de bains 1
  • Surface 84.65 m²
  • Prix 380,000€

Détails

  • Référence 57075233
  • Prix 380 000€
  • Honoraires 20000€
  • Les honoraires d'agence seront à la charge du vendeur
  • Nombre de pièces 4
  • Nombre de salles de bain 1
  • Nombre d'étages 3
  • Numéro d'étages 2
  • Chauffage Individuel
  • Copropriété Oui
  • Nombre de lots 3
  • Procédures 1

Video

Diagnostic énergétique du bien

DPE non communiqué Consommations non exploitables
* Dont émissions de gaz à effet de serre
GES non communiqué Consommations non exploitables

Géorisques

Les informations sur les risques auxquels ce bien est exposé sont disponibles sur le site Géorisques https://www.georisques.gouv.fr